Leave a Message

Thank you for your message. We will be in touch with you shortly.

4717 Spine Rd E

$489,000
4717 Spine Rd E, Boulder, CO 80301
4717 Spine Rd E

4717 Spine Rd E

$489,000

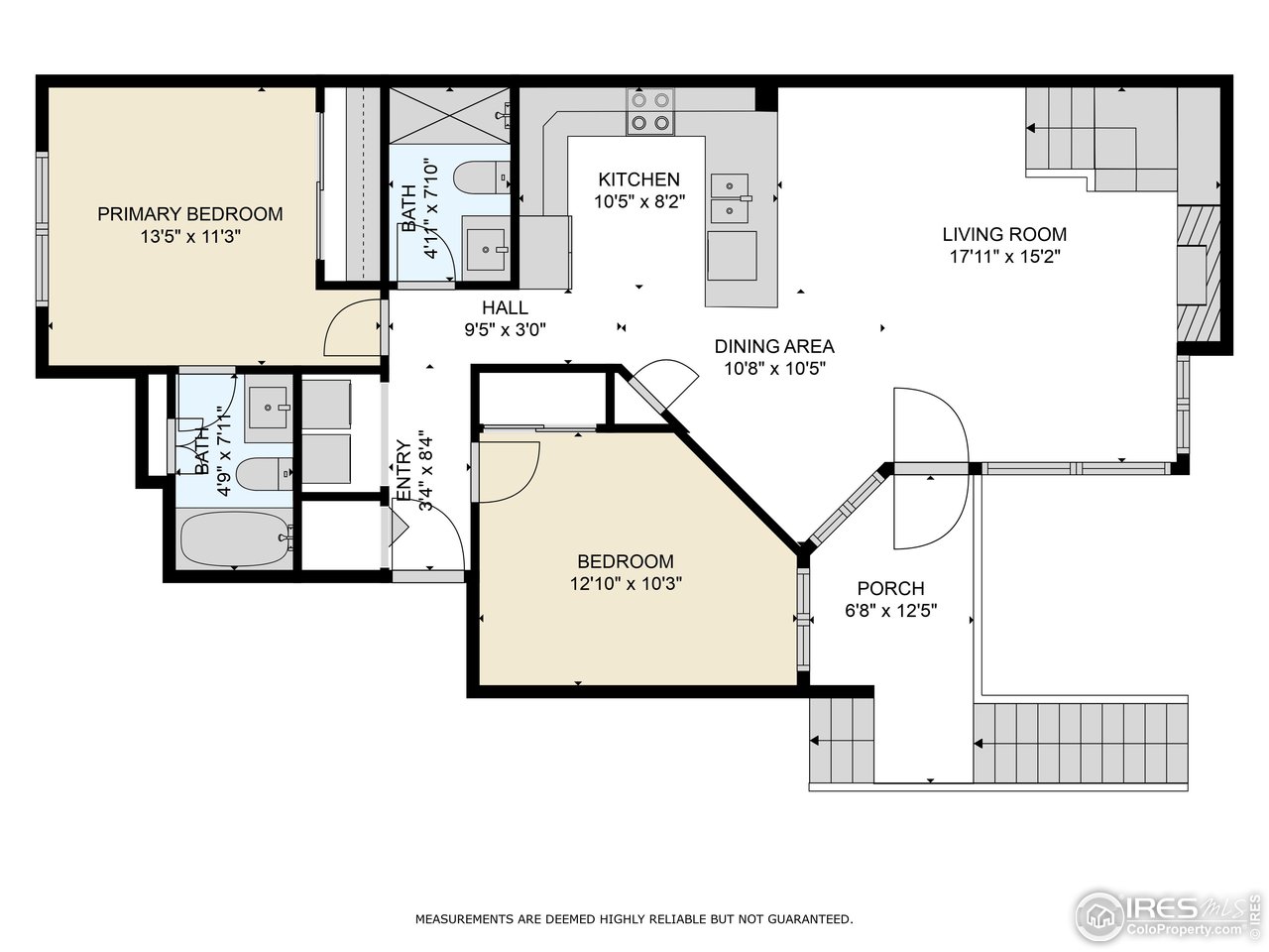
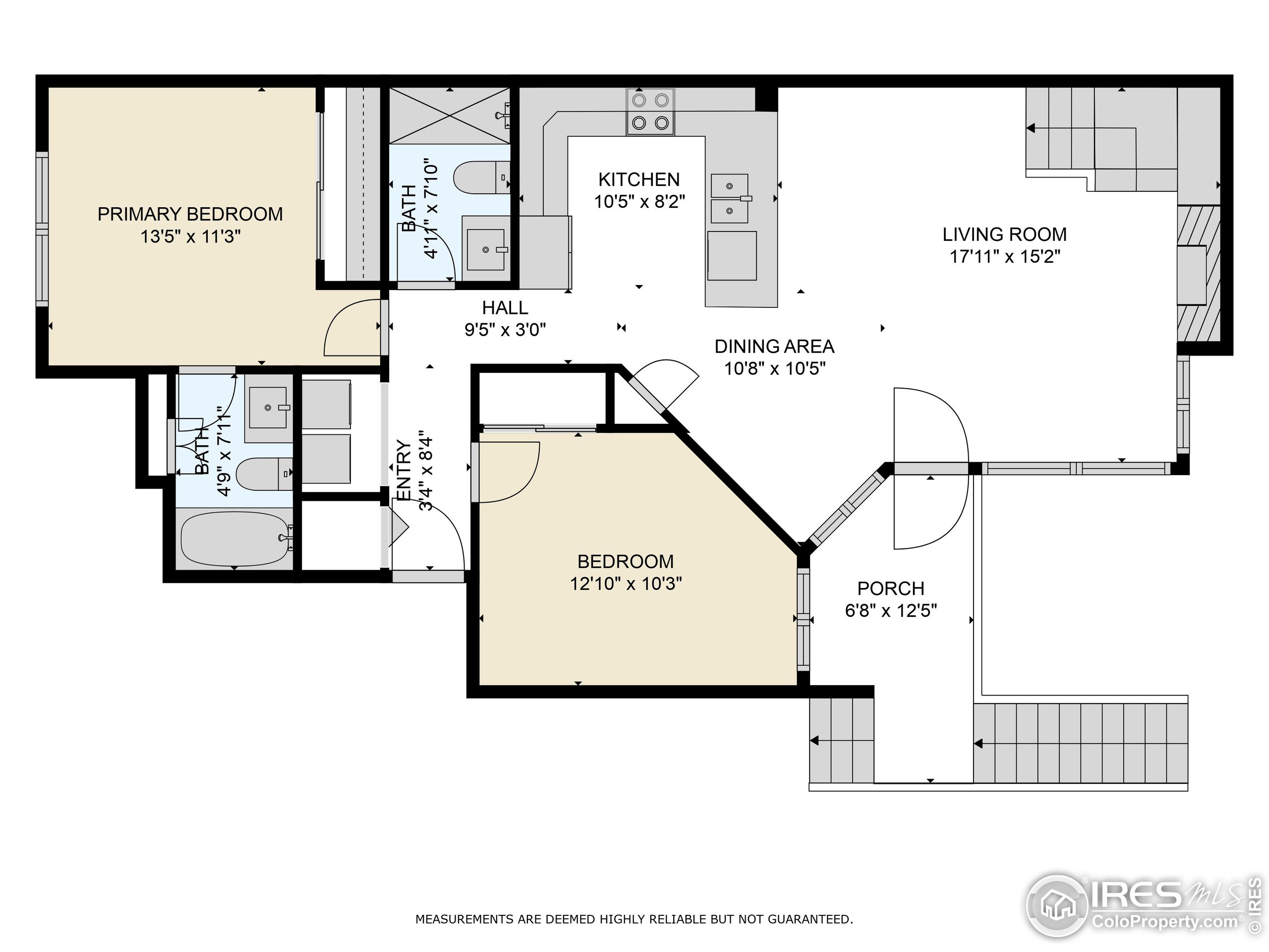
Welcome to your dream home in a vibrant, amenity-rich community! This exceptional 2-bedroom, 2-bathroom condo with a spacious loft is the epitome of luxury and modern living. Fully upgraded and thoughtfully designed, this floor plan is the best in the HOA, offering comfort, style, and unparalleled convenience. Brand new air conditioner, new high-efficiency tankless water heater, new furnace, high-end energy efficient windows, heated master bathroom floor, and ELECTRIC VEHICLE CHARGER IN GARAGE. More than $70,000 value add! The open-concept living and dining areas are perfect for entertaining, with abundant natural light and elegant finishes throughout. Enjoy cooking in the state-of-the-art kitchen featuring high-end stainless steel appliances, granite countertops, and custom cabinetry. The master bedroom is a serene retreat with a large closet and a spa-like ensuite bathroom. The expansive loft offers endless possibilities - use it as a home office, media room, or guest suite. Step outside to your private balcony and enjoy your morning coffee while taking in the quiet mystic of Gunbarrel living. From brand new floors to designer light fixtures, no detail has been overlooked in this meticulously upgraded condo. The community offers a resort-style pool, well-maintained tennis courts, and immediate access to scenic parks and trails, providing endless opportunities for outdoor recreation and serene nature walks. Enjoy stunning mountain views from various vantage points throughout the community, adding to the picturesque setting. Located in a sought-after neighborhood, this condo provides the perfect blend of luxury, convenience, and outdoor living. Don't miss the opportunity to make this exquisite property your new home.
Kristin Kern
Kristin Kern Contact

Features & Amenities

Interior

Total Bedrooms 2
Total Bathrooms 2
Full Bathrooms 1
Three Quarter Bathrooms 1
Fireplace Living Room
Appliances Electric Range/Oven, Dishwasher, Refrigerator, Washer, Dryer, Microwave

Exterior

Stories 1
Garage Space 1.0
Water Source City Water, City of Boulder
Utilities Natural Gas Available, Electricity Available
ROOF Composition
Heat type Forced Air
Air Conditioning Central Air
HOA Amenities Common Amenities, Trash, Snow Removal, Maintenance Grounds, Management, Utilities, Maintenance Structure, Water/Sewer, Hazard Insurance

Area & Lot

Status Sold
LIVING SPACE 1,091 Sq.Ft.
TOTAL AREA 1,091 Sq.Ft.
MLS® ID 1011558
Type Residential
Year Built 1982
Neighborhood Gunbarrel
Architecture Styles Ranch
View Description Foothills View
ELEMENTARY SCHOOL Crest View
MIDDLE SCHOOL Centennial
HIGH SCHOOL Boulder
School District Boulder Valley Dist RE2

Financial

SALES PRICE $489,000
REAL ESTATE TAXES $2,512/yr
HOA Fees $454/mo
Zoning MF
Gunbarrel

Gunbarrel

Read more

Work With Us

Join the Herz Team for an exceptional real estate journey where your voice matters. Let us be your lifelong consultants in Boulder and Denver, creating the home of your dreams and exploring the unique charm of our communities.

CONTACT US